MILANO – Vicinanze

Vendita Castello
9.750.000 € Prestigioso e Irripetibile Investimento Immobiliare

Descrizione

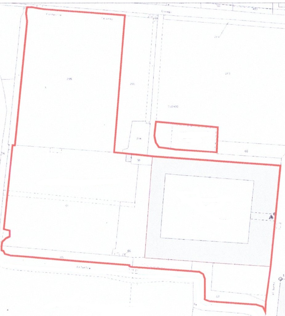
A soli sette chilometri da Milano, a quindici chilometri dall’Aeroporto di Milano Linate, a quaranta chilometri dall’Aeroporto di Milano Malpensa e a quaranta chilometri dal Lago di Como, in Comune di Cusago situato nella piazza principale e nel cuore verde del paese in prossimità dei principali servizi comunali, attorniato da prati e viali alberati, si erge imponente il Castello Visconteo risalente al XIV secolo che, fu eretto per volere di Bernabò Visconti, la struttura a corte di pianta rettangolare si caratterizza dalla presenza di una torre di guardia sul fronte centrale, quale fortificazione longobarda ed inoltre fungeva altresì da riserva di caccia.
Il Castello Visconteo si sviluppa su due piani fuori terra di cui due porzioni con ammezzato, il fabbricato dominante sul territorio circostante, ha una superficie di mq. 6.000 ca. ed è circondato da un grande parco di mq. 15.000 ca.
L’immobile è stato recentemente oggetto di manutenzione straordinaria riguardante il rifacimento dell’intera struttura di copertura e del consolidamento della Torre.
Immobile non soggetto all’obbligo di Certificazione Energetica.
€. 9.750.000,00 Prestigioso e Irripetibile Investimento Immobiliare

Contattare Studio Bertossi:
ERBA (CO) C.so XXV Aprile, 123 (Galleria Centrale) Tel.Fax +39 031.643228
COMO – Via Rusconi, 27 (Palazzo Rusca) Tel.Fax +39 031.266029
e-mail: bertossistudio@libero.it
www.immobiliarebertossi.com


Caratteristiche

  • Prezzo9.750.000 € Prestigioso e Irripetibile Investimento Immobiliare
  • TipoCastello
  • Venduto No
  • Contratto Vendita
  • LocalitàMilano
  • Dimensioni immobilemq. 6.000 ca
  • Giardino15.000 ca mq.

Servizi

  • Giardino

Piantine Piani

Servizi Pubblici

20 min, 15 km
Aeroporto
5 min.
Alberghi
10 min.
Autostrade
5 min.
Banche
5 min.
Campi da tennis
5 min.
campo da calcio
5 min.
campi da padel
5 min.
campi da basket
1 min.
Chiese
3 min.
Croce Rossa
5 min.
Farmacie
5 min.
Forze dell'Ordine - CC - PS
1 min.
Municipio
3 min.
Negozi
9 min.
Ospedale
1 min.
Parcheggi
1 min.
Parco giochi bambini
5 min.
Piscine
1 min.
Ristoranti
5 min.
Scuola
3 min.
Passeggiate
3 min.
Sporting Club
3 min.
Ufficio Postale
3 min.
Supermercati

Mappa